Property Detail

7236 Amigo

Reseda CA 91335

$499,999

Status: Active

Property Details

Description

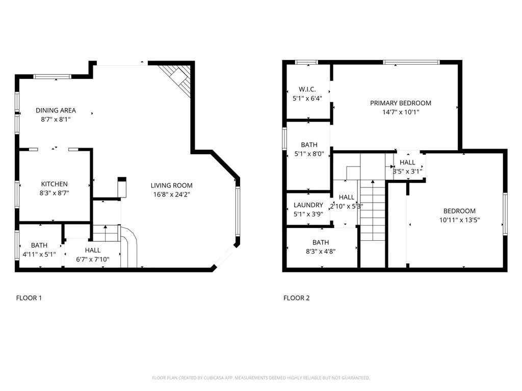
Prime front-corner unit with private balcony tucked away on a quiet, tree-lined street, this exquisite front-corner unit is the crown jewel of the Amigo Villa community. Offering 2 spacious bedrooms, 2.5 bathrooms, and thoughtful upgrades throughout, this home blends modern luxury with everyday convenience. Step inside to a bright and inviting layout featuring custom wooden shutters, rich hardwood flooring, and a spacious entryway with built-in storage beneath the staircase. The home is pre-wired with a full alarm system and secured with an intercom panel and remote-controlled door access, ensuring both comfort and peace of mind. Natural light floods the living spaces through oversized windows, while a cozy gas fireplace and balcony with sliding shutter doors create the perfect atmosphere for relaxing or entertaining. The open-concept dining area impresses with a stunning arched window, modern tray ceiling, and brushed nickel chandelier. The recently remodeled kitchen is a chefs delightcomplete with Quartz countertops, sleek Samsung appliances, gas range, oven, microwave, dishwasher, and refrigerator. A convenient half bath on the main floor is perfect for guests. Upstairs, retreat to the luxurious master suite, boasting soaring cathedral ceilings, a private balcony, a custom walk-in closet, and a spa-like en-suite bathroom with a Bluetooth LED music/light fanyour very own in-home retreat. The second bedroom is equally inviting, featuring mirrored sliding doors and direct access to a fully updated bathroom with the same smart-lighting upgrade. Additional features include: *

Map Location

Listing provided courtesy of Anthony Nguyen of Keller Williams Luxury. Last updated . Listing information © 2025 PACIFICSOTHEBYSFULLSANDICORCOMBINED.

Greta Treadgold

Broker
​​​DRE# 01450729
Inquire Now
admin Real estate https://www.royacdn.com/unsafe/smart/Site-53a24f4e-cd5b-41ad-bb80-c7a4c5bb2c03/_g.jpg