Property Detail

2260 Sunrise

Palm Springs CA 92262

$364,500

Status: Active

Property Details

Description

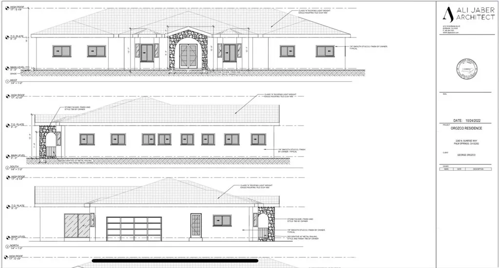
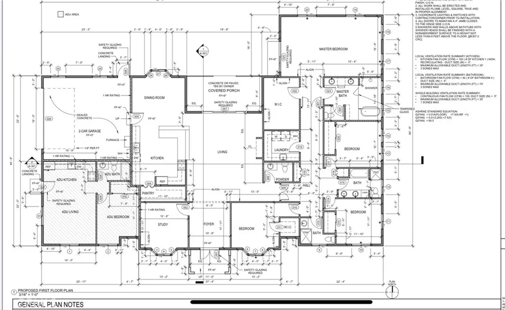
READY TO BUILD!!! Nice large lot in the area of Desert Park Estates of Palm Springs. Located amongst large homes in an established neighborhood. The property measures about 19,602 Square feet and comes with approved and permitted plans for building a large residential lot AND ADU. The custom built home will feature large expansive layout, high ceilings, all single level. Landscaping plans and ADU attached to the home. Lot size is 137x150x137x149. Water connection was just installed on the property. Buyer to evaluate all aspects of the property and plans with the city to ensure they're satisfied with all claims.

Map Location

Listing provided courtesy of Scott Mount of Re/Max Time Realty. Last updated . Listing information © 2025 PACIFICSOTHEBYSFULLSANDICORCOMBINED.

Greta Treadgold

Broker
​​​DRE# 01450729
Inquire Now
admin Real estate https://www.royacdn.com/unsafe/smart/Site-53a24f4e-cd5b-41ad-bb80-c7a4c5bb2c03/_g.jpg