Property Detail

4260 Canoga

Woodland Hills CA 91364

$325,000

Status: Active

Property Details

Description

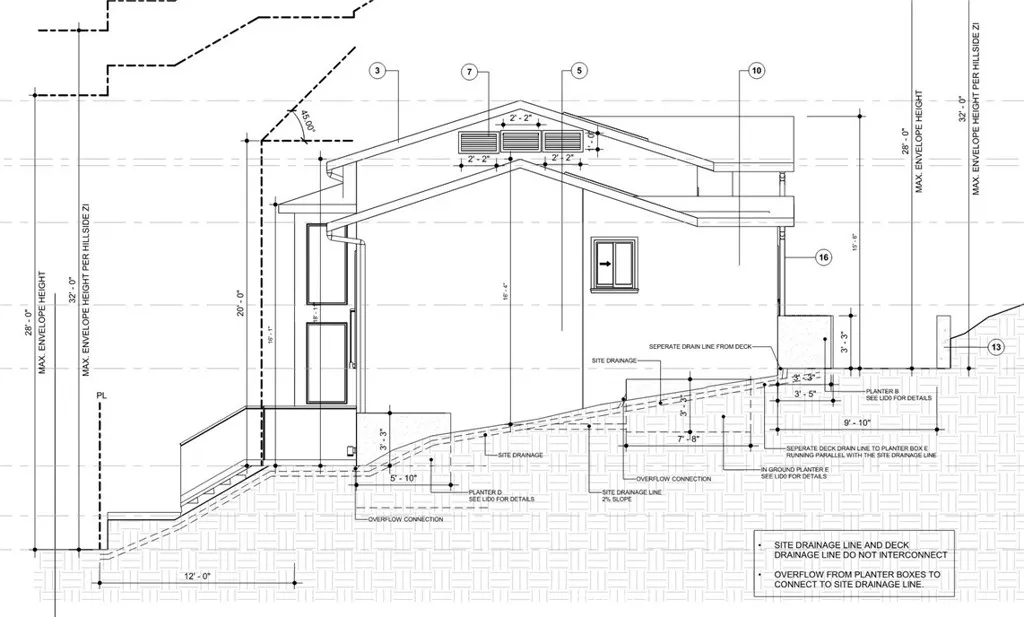
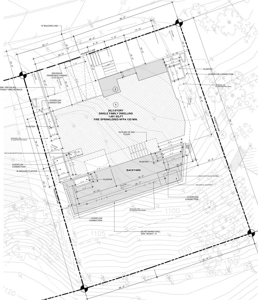
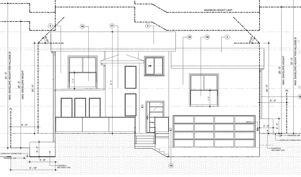
Vacant Lot with RTI Plans 4260 Canoga Avenue (Lot No. 5255, Cut 1 & 2) Excellent opportunity to build a beautifully designed single-family residence in a highly desirable Woodland Hills neighborhood. The property comes RTI (Ready-to-Issue) with a full set of approved plans for a stylish home featuring approximately 1,957 sq. ft. of building area (1,691 sq. ft. RFA), including an attached garage. The lot is approximately 5,027 sq. ft. (per tax assessor) and is situated on an uphill site no costly caisson work required. All approvals have been secured through the Mulholland Corridor Design Review Board, and the architectural, structural, grading, and landscape plans are included. Simply pull the permit and start construction immediately. This is a great opportunity to develop in a prime location surrounded by quality homes. The proposed design blends modern style with the natural hillside setting, creating a perfect balance of comfort and elegance. Note: Buyer to verify all information independently. Also, see listings for 4254 and 4256 Canoga Avenue for nearby opportunities.

Map Location

Listing provided courtesy of Behnam Ansari of Gold Star Realty. Last updated . Listing information © 2025 PACIFICSOTHEBYSFULLSANDICORCOMBINED.

Greta Treadgold

Broker
​​​DRE# 01450729
Inquire Now
admin Real estate https://www.royacdn.com/unsafe/smart/Site-53a24f4e-cd5b-41ad-bb80-c7a4c5bb2c03/_g.jpg