Property Detail

1953 Camwood

Rowland Heights CA 91748

$949,000

Status: Active

Property Details

Description

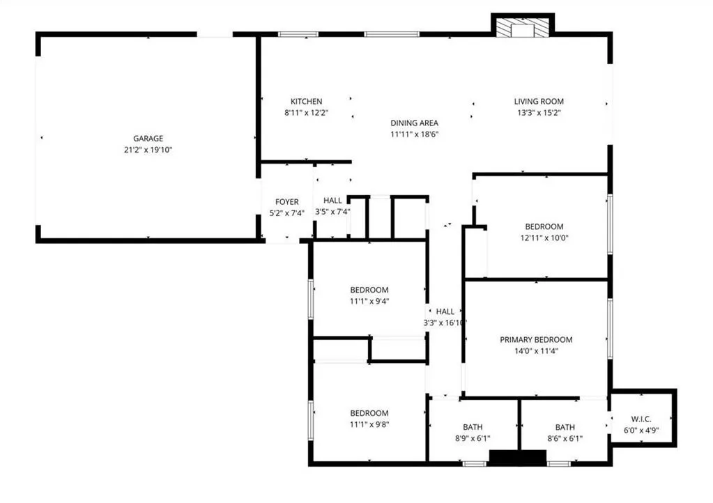
Honey, stop the car. This is the one! Welcome to one of the most impressively renovated homes in Rowland Heights. This beautifully updated 4-bedroom, 2-bath property has been fully reimagined for modern living, offering 1,330 sqft of upgraded comfort on a generous 6,851 sqft lot. The quality of work and attention to detail make this home stand out as one of the finest in the neighborhood. Exterior improvements include a brand-new roof, fresh stucco and fascia, new dual-pane windows, new exterior doors, and a new garage door. Additional upgrades such as diamond-cut concrete, artificial turf, an aluminum patio cover, and modern fencing provide excellent curb appeal, low maintenance, and enhanced privacy. Inside, the home feels like new construction. Upgrades feature all-new PEX plumbing, updated electrical with a new sub panel, fresh insulation and drywall, recessed lighting throughout, and luxury vinyl flooring. The kitchen offers quartz countertops, custom cabinetry, and a designer backsplash. Both bathrooms have been fully remodeled with high-end finishes. A quartz-accented fireplace creates a warm, modern centerpiece. The garage has also been finished with insulation, drywall, recessed lighting, and epoxy flooringideal for a gym, workspace, or additional storage. With every major system upgraded, this home delivers the perfect blend of quality craftsmanship, modern comfort, and peace of mind in one of Rowland Heights most desirable areas. Homes of this caliber rarely become available. Schedule your appointment today, you do not want to miss this one.

Map Location

Listing provided courtesy of Luis Grimaldo of HomeSmart Realty Group. Last updated . Listing information © 2025 PACIFICSOTHEBYSFULLSANDICORCOMBINED.

Greta Treadgold

Broker
​​​DRE# 01450729
Inquire Now
admin Real estate https://www.royacdn.com/unsafe/smart/Site-53a24f4e-cd5b-41ad-bb80-c7a4c5bb2c03/_g.jpg