Property Detail

402 Howard

Corona CA 92879

$899,000

Status: Active

Property Details

Description

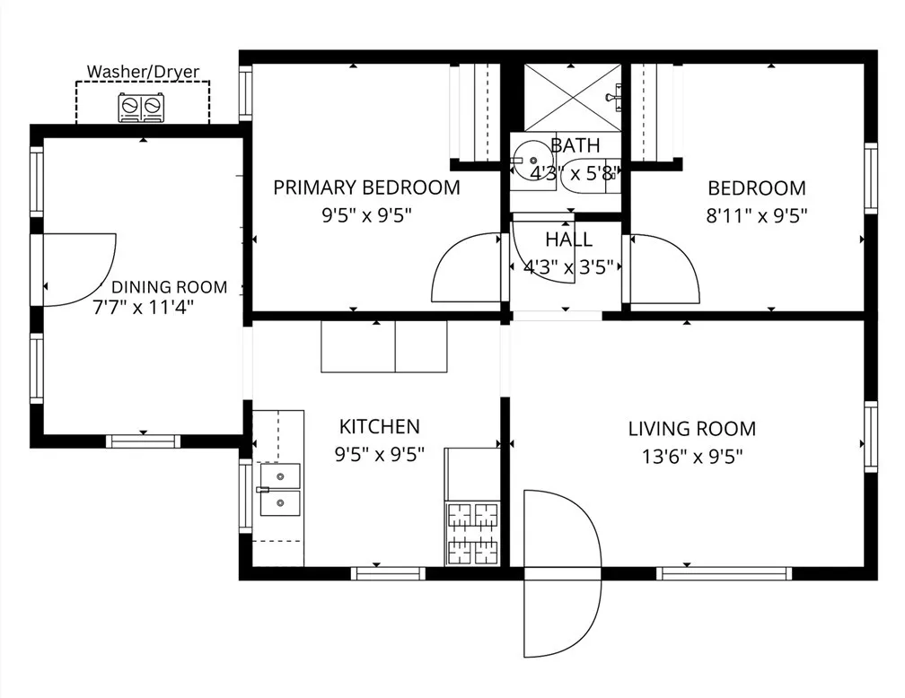
GREAT OPPORTUNITY - SELLER FINANCING AVAILABLE | RARE DUPLEX | SINGLE STORY | RV PARKING | NO HOA | LOW TAXES| This exceptional property has separate meters for water, electricity and gas. Own this versatile 2-home income-producing property located in one of Coronas most desirable locations. This property is in the heart of Circle City - walk to Coronas new Revitalization Project with new restaurants, vibrant community spaces, and more! Situated near 91 and 15 freeways, you'll have quick access to Metrolink, 71 & 241 freeways, Corona Regional Medical Center, Corona Library, Starbucks, and the Farmers Market. Unit 1 offers a spacious 3-Bedroom, 2-Bath house. layout designed for comfort and functionality. Step into a generously sized Living Room that provides the perfect space for relaxing or entertaining. The expansive Kitchen offers abundant cabinetry, plenty of counter space, and room for a future island, ideal for the home chef. The adjacent Dining Area opens to the backyard for easy outdoor access. The Primary Bedroom includes a private Ensuite Bathroom with a walk-in shower and privacy door, while the two additional bedrooms are well-sized for guests or family. A second full Bathroom features a shower/tub combo. The attached 2-car Garage offers convenience with washer/dryer hookups and an adjacent Bonus Flex Room 10x20 feetperfect for a workshop, pantry, gym, or additional storage. Potential to convert to a 600 SQFT ADU for additional income. Plenty of driveway space for extra parking. This unit also has alley access for added flexibility. Unit 2 features a 2-Bedroom, 1

Map Location

Listing provided courtesy of Kelly McLaren of Keller Williams Realty. Last updated . Listing information © 2025 PACIFICSOTHEBYSFULLSANDICORCOMBINED.

Greta Treadgold

Broker
​​​DRE# 01450729
Inquire Now
admin Real estate https://www.royacdn.com/unsafe/smart/Site-53a24f4e-cd5b-41ad-bb80-c7a4c5bb2c03/_g.jpg