Property Detail

20931 Judah Lane

Newhall CA 91321

$525,000

Status: Active

Property Details

Description

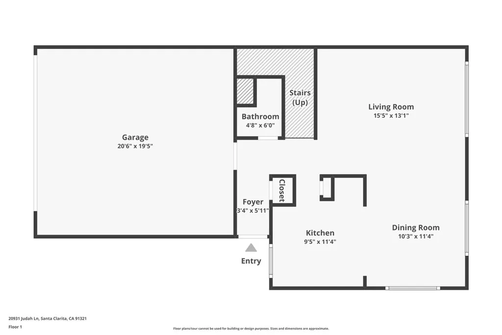
Beautifully remodeled 2-bedroom, 3-bathroom corner-unit townhome in a warrantable loan condo complex featuring an attached two-car garage, a spacious private backyard, and a charming patio off the primary bedroom. This upgraded home blends modern style, everyday comfort, and exceptional convenienceperfect for buyers seeking a move-in-ready property in a highly desirable location. Step inside to soaring high ceilings, abundant natural light, and an open-concept layout that instantly feels inviting. The floor-to-ceiling rock wood-burning fireplace is the centerpiece of the large living room, creating the perfect setting for cozy nights or effortless entertaining. Sliding glass doors lead directly to your private patio, ideal for indoor-outdoor living. The updated chefs kitchen showcases modern white cabinetry, quartz countertops, stainless steel appliances, and sleek tile flooringdesigned for both beauty and functionality. Upstairs, youll find two true primary suites, each offering its own private bathroom. One suite includes a walk-out balcony, perfect for enjoying morning coffee or evening sunsets. Generous storage is found throughout the home, adding to its comfort and practicality. This townhome is not only gorgeousits also a smart buy as the condo community is warrantable, offering buyers more flexible loan options and smoother financing then other condo complexes in the area. The condos HVAC system and water piping have been recently updated as well. With its prime location, thoughtful upgrades, and exceptional value, this townhome checks all the boxes. Dont waithomes l

Map Location

Listing provided courtesy of Johnathan Frank of Real Brokerage Technologies, Inc.. Last updated . Listing information © 2025 PACIFICSOTHEBYSFULLSANDICORCOMBINED.

Greta Treadgold

Broker
​​​DRE# 01450729
Inquire Now
admin Real estate https://www.royacdn.com/unsafe/smart/Site-53a24f4e-cd5b-41ad-bb80-c7a4c5bb2c03/_g.jpg