Property Detail

915 Patria

Atascadero CA 93422

$579,000

Status: Active

Property Details

Description

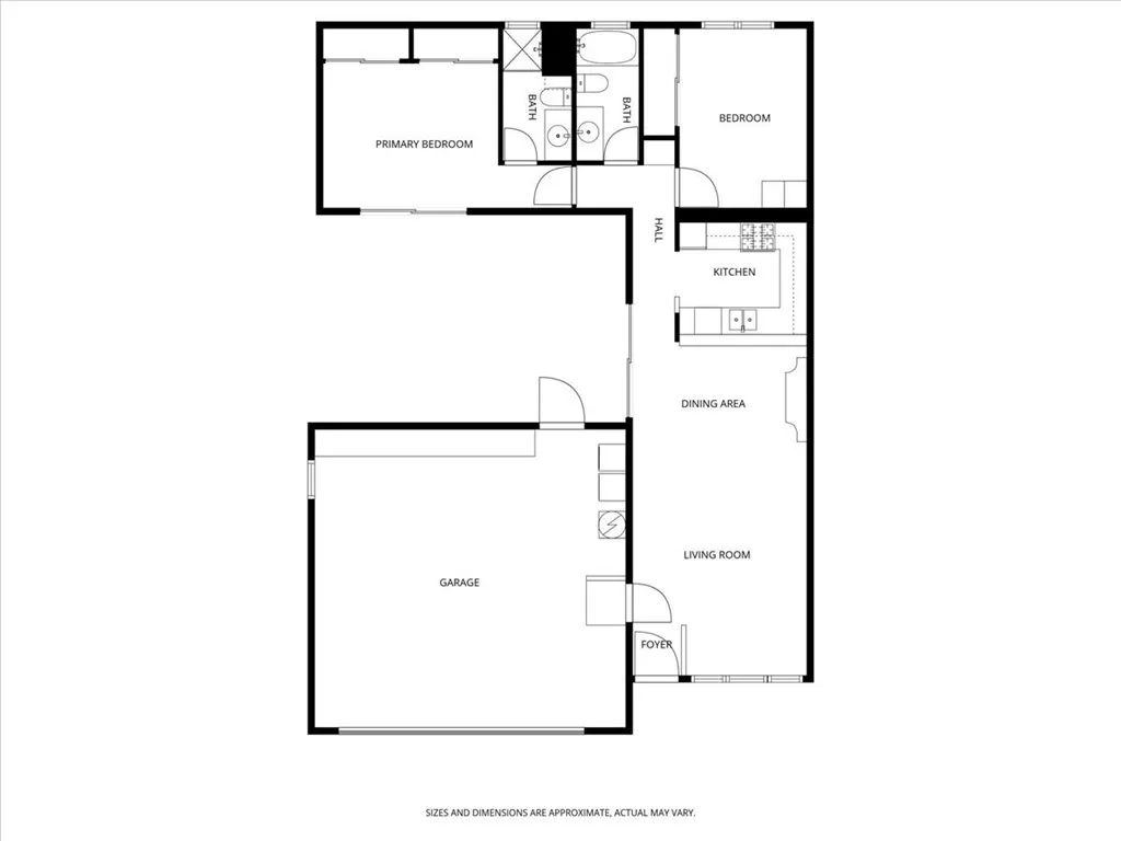
Believe your eyes! A rare SINGLE STORY two bedroom, two bath, two car garage home has become available. A central course unicorn property, this home is a single family detached residence in amazing condition in a small, well kept neighborhood with two parks on the south end of Atascadero with very low monthly HOA. Only the second owner, 915 Patria is in amazing condition with all the most important improvements and move-in ready. The HVAC system is less than two years old and so is all the venting. With a wonderful sense of arrival, an enclosed patio invites you in through the front door into an open concept living room, dining and spacious kitchen. The bedrooms are roomy and separated by each bathroom. At the back of the home is the quiet primary en suite far from the activity of the house and opening onto your back patio and lawn. Schedule your showing to see how the u-shape floor pan situates all the important living spaces around the back outdoor space, letting in great light. A large partially covered patio provides shady outdoor space for warm summer days and there's a plenty of sunny patio and proper yard, too. Just enough to enjoy, play and garden without overwhelming your time at home with upkeep.

Map Location

Listing provided courtesy of Kyra Dykes of eXp Realty of California, Inc.. Last updated . Listing information © 2025 PACIFICSOTHEBYSFULLSANDICORCOMBINED.

Greta Treadgold

Broker
​​​DRE# 01450729
Inquire Now
admin Real estate https://www.royacdn.com/unsafe/smart/Site-53a24f4e-cd5b-41ad-bb80-c7a4c5bb2c03/_g.jpg